★ 使用場合:
在一些特殊環境下不能直接接收GPS/北斗信號(例如:隧道、地下車庫、大型封閉倉庫等)而又需要使用北斗信號,可通過此設備實施覆蓋。二、組成部分:
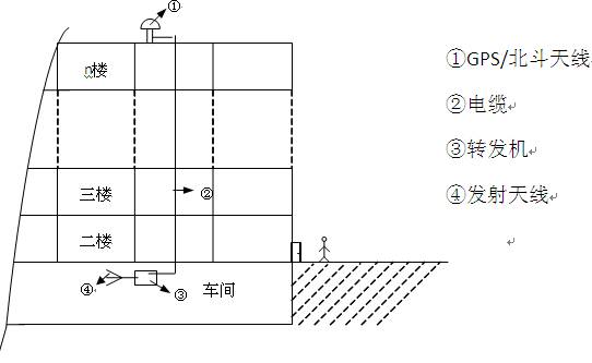
①GPS/北斗接收天線
②電纜
③轉發機
④發射天線
設備連接框圖
供電方式:
①轉發機——220V/50Hz。
②在線放大器與收天線由轉發機饋電。
覆蓋范圍:
全向輻射 半徑≥25米
各部分作用及使用注意事項:
① 接收天線:接收GPS/北斗衛星信號,達到轉發的作用。
② 在線放大器:實際使用時往往可直接收信號處與需覆蓋環境間的距離較大,所需連接電纜損耗較大,因此要使用在線放大器來補償。
③ 電纜:根據實際使用環境與GPS/北斗天線間的距離來選擇長度。
④ 轉發機:轉發機是將收來的信號放大覆蓋所需使用的設備,為保證覆蓋的有效范圍,安裝時盡量安裝在高處并且在覆蓋環境的中部。
禁止事項
轉發機請勿在戶外使用,避免干擾類似設備的正常工作。
應用示意圖

接受客戶訂制,可設計成儀表式,集成控制(增益可調)、顯示、保護模塊,可按要求設計支架,提供布線方案。
文章分頁:1